左図の断面を05ミリ程度落とし、平滑にします。 状態はスリガラス調で、縦に薄い線が付きます。 別途¥0~ カンナ・糸面取 仕上 ミガキ 仕上 カンナ仕上の後、エッジ(角)を落します。 主に怪7 4 板各部のたわみおよび断面力 41 たわみ w (単位:mm) x (m) 0000 0313 0625 0938 1250 1563 1875 21 2500下見板 下見板張とは、横羽目板壁の一種で上下の端を羽根重ねして張る方法です。 鎧(よろい)張とも呼ばれ、鎧の大袖や草摺の形状のように重ね合わせ段がつくのが特徴です。 雨風の侵入を防ぎやすいので、木造建築の外壁に活用されます。 杉無垢 塗装受注
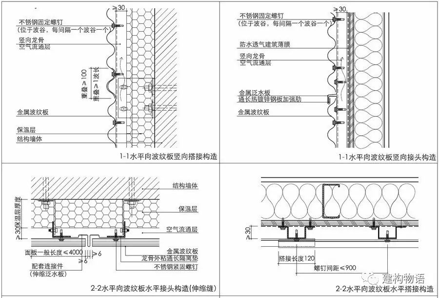
另一种肌理的建筑外墙 压型金属板
板 曲げ 断面係数
板 曲げ 断面係数-板要素の断面力オプション 要素座標系 板要素の要素座標系による単位幅当たり断面力の等高線図を表示します。 UCS ユーザー座標系xy平面と平行に配置された板要素に対して、ユーザー座標系を基準とした単位幅当たり断面力の等高線図を表示します断面の核 せん 断応力 断 面 面 積 A 図心より縁に 至る 距離 y 0 断面2次 モーメ ン ト) I x 断面2次半径 i x 断面係数 Z x b 2 d 2 断 面 形 e = d/4 r 1 d/6 2 d/12 e = d/3 e = D/4 e = 1 t 0 x x 0 b w h f f y 0 y hw f b 0 xx t y 1 y 2 xx d b y 0 d 1 D e e e r d 2 d 1 e D 1 D 2 b b/3 d/3 e r d d/4 b/4



D谛国学堂 汽车b柱内板主断面catia正向开发
大引部材の断面性能は以下の通りである。 断面性能 断面2次モーメント I= 333 cm4 断面係数 Z= cm3 ヤング係数 E= 70,000 kg/cm2 許容曲げ応力度 fb= 105 kg/cm2 支柱間隔 L= 100 cm 応力計算用荷重 W=分布荷重*大引き間隔=928*1 = 1,114 kg/m = kg/cm断面が正三角形 p97 断面が直角二等辺三角形 p97 梁の公式 p98 キーの強さ p102 ばねの図表 p111 ばねの一般計算式 p112 伝熱計算の式(表面温度を設計条件とする場合) p121 主要化学工学公式 p267 各種断面における鉛直せん断応力度τの分布断面係数 矩形断面公式の導出 一般的な方法 前述したように、断面係数Zとは簡単に言えば、「曲げモーメントにどれだけ抵抗できるか?」示す値です。この断面係数の大本の式は、当サイトの曲げ応力度の誘導で示しています。下式をみてください。
鋼製足場板 注意 強度 足場板 形状 荷重-たわみ曲線 240 240 230 40 品 番 長さℓ 幅W 厚さt 質量 色 SL4 4,000mm 240mm 40mm 145kg SL3 3,000mm 240mm 40mm 107kg SL2 2,000mm 240mm 40mm 74kg ① 支持間隔にもとづく制限荷重の範囲内でご使 用ください。覆工板の規格 形 状 鋼製 アスファルト舗装付 長さ 3m 重 量 780(kN/枚) 受桁の規格 形 状 H350×350×12×19 断面積 A = (cm 2) 断面二次モーメント Ix = (cm 4) Iy = (cm 4) 断面係数 Zx = 00(cm 3) Zy = 716(cm 3)断面二次モーメントとは 曲げモーメントに対するはりの部材の変形のしにくさを表した量である。 物体の断面(大きさや形状)を変えると, 断面二次モーメント (area moment of inertia, 2 nd moment of area, second area moment, quadratic moment of alea)の値も変化するので
断面係数 Z=373㎤ 支持間隔 18m 制限荷重 150㎏(1470N) たわみ量 09㎝ 種 類 単量(㎏) たわみ(㎜) 軽量鋼製足場板 135 6 アルミ合金製足場板 101 18 合板足場板(木製) 180 鋼製足場板 ※合板足場板(木製)アルミ合金製足場板は弊社では取扱っており覆工板 断面図 「 覆工板 断面図 」のダウンロードはこちらをクリックしてください DXF形式(LZHで圧縮してあります。 解凍してご利用ください) ファイルサイズ約33kB PAGE TOP




汽车内饰之 内饰之前门上下护板断面 启飞专业知识系统分享 整车内饰开发38 启飞汽车设计培训




汽车内饰之 内饰之前门上下护板断面 启飞专业知识系统分享 整车内饰开发38 启飞汽车设计培训




汽车内外饰设计 仪表板安装断面设计 知乎



钢筋混凝土板断面图 搜狗图片搜索




汽车白车身主断面控制要点 易车



道路横断面类型 文章与阅读分享 Caup Net



两块板道路断面 万图壁纸网



重庆大学网络教育学院




目 断面図 Stock Vector Adobe Stock




长约2 37km 东阳市区这条道路将改造提升 主干路 网易订阅




卒業設計13 14 断面図 断面 Shinosan4038 Flickr




汽车内外饰断面设计指南 每日头条




Diyの仕上げに便利 木口テープを使って木材の断面を飾ってみよう Limia リミア



车身主断面设计方法培训 光学社




Pc 聚碳酸酯 阳光板 这些断面你分得清嘛 上海绿澳新材料科技有限公司



道路断面形式示意图 信息评鉴中心 酷米资讯 Kumizx Com




汽车内饰之 内饰之前风窗区域仪表板断面 启飞专业知识系统分享 内饰断面04 启飞汽车设计培训



汽车内饰之 内饰之前风窗区域仪表板断面 启飞专业知识系统分享 内饰断面04 启飞汽车设计培训




汽车内外饰断面设计指南 每日头条



汽车门护板结构设计 西瓜视频搜索




五金冲压件冲裁过程分析以及断面特征 东一五金有限公司




建筑识图 分分钟教你弄清断面图与剖面图 雪花新闻




长约2 37km 东阳市区这条道路将改造提升 主干路 网易订阅



工程施工图纸怎么看 断面图的分类 建筑识图入门教程大全




年基本消除劣 类国考断面 广东污染防治攻坚战指挥部发出一号令 环保资讯 聚焦环保网



肋板的重合断面图 万图壁纸网




仪表板断面 干货 内外饰仪表板安装断面设计规范 怡姐话人物的博客 Csdn博客




在指定位置对主视图取半剖视和局部剖 画出右侧肋板的移出断面 并求作全剖视的左视图 查题网



如何设计明渠量水堰板安装示意图及断面图




汽车内饰之 门护板的四种经典断面 启飞专业知识系统分享 整车内饰开发37 启飞汽车设计培训



路基变形测量



重庆大学网络教育学院



箱梁断面 输入参数 变截面箱梁操作流程 变截面箱梁设计 桥易专题 土木云 远程设计saas平台



道路断面形式示意图 信息评鉴中心 酷米资讯 Kumizx Com




仪表板断面 干货 内外饰仪表板安装断面设计规范 怡姐话人物的博客 Csdn博客



干货分享 光纤激光金属切割工艺改进的途径 光斑



另一种肌理的建筑外墙 压型金属板



混凝土波形护栏板中走通信 供电管线的问题该如何解决 波形护栏板 防撞护栏 波形栏杆 贵州渝湘交通设施有限公司




仪表板断面 干货 内外饰仪表板安装断面设计规范 怡姐话人物的博客 Csdn博客




钢筋混凝土板断面图 搜狗图片搜索



南昌拟新建改造3条道路涉及红角洲 瑶湖片区 江西 手机江西网




仪表板断面 干货 内外饰仪表板安装断面设计规范 怡姐话人物的博客 Csdn博客



肋板的重合断面图 万图壁纸网



断面图 Ppt 360文库



车身主断面设计方法培训 光学社



另一种肌理的建筑外墙 压型金属板



D谛国学堂 汽车b柱内板主断面catia正向开发




360影视 影视搜索




汽车内饰之 内饰之门槛护板断面 启飞专业知识系统分享 整车内饰开发40 启飞汽车设计培训




汽车内外饰断面设计指南 每日头条




Cad机械制图常识之断面 机械行业知识 浩辰cad官网




仪表板断面 干货 内外饰仪表板安装断面设计规范 怡姐话人物的博客 Csdn博客



Cad梁钢筋断面图怎么画 西瓜视频搜索



两块板道路断面 万图壁纸网




木盘上半份的素菜汉堡切口特写库存照片 图片包括有营养 午餐 小圆面包 成份 新鲜 健康



常用板型断面图形



波纹板断面 利来w66手机版官网 利来w66手机版登录 快乐改变生活




Pc 聚碳酸酯 阳光板 这些断面你分得清嘛 上海绿澳新材料科技有限公司



肋板的重合断面图 万图壁纸网




我省103个国考断面水质优良湖北日报数字报



黑龙江发明网



盒子板断面 无锡赛凯斯精密机械有限公司



另一种肌理的建筑外墙 压型金属板




断面 新人首单优惠推荐 21年6月 淘宝海外



城市道路断面的城市道路断面 信息图文欣赏 信息村 K0w0m Com



Cad怎么快速画断面图cad断面图怎么画



如何设计明渠量水堰板安装示意图及断面图



用颗粒板做柜子怎样 屋主看到断面不想用了 工人说




丁字板的重合断面图 重合断面图的视图 正确的重合断面图是



南昌拟新建改造3条道路涉及红角洲 瑶湖片区 江西 手机江西网




汽车内外饰设计 仪表板安装断面设计 知乎



有梁板断面图照片 搜狗图片搜索



小径级原木制备大断面集成材技术与装备 等成果通过鉴定 中国人造板技术装备网



中空金邦板 K系列 建材u选



车身环状框架结构断面正向轻量化设计 乘用车轻量化 汽车轻量化在线 手机版




肋板断面图怎么画第1页 驾考预约大全



腐蚀性地层中隧道全断面防水板铺挂结构专利专利查询 天眼查



剪板机剪切出平整断面的技巧 浙江华阳剪板机有限公司 技术支持



车身环状框架结构断面正向轻量化设计 乘用车轻量化 汽车轻量化在线 手机版




段欠きによる背板の収まり 断面図 作っちゃう



彩板门窗



用颗粒板做柜子怎样 屋主看到断面不想用了 工人说得很实在 腾讯新闻



车身环状框架结构断面正向轻量化设计 乘用车轻量化 汽车轻量化在线 手机版




断面图和种类与画法 搜索结果 哔哩哔哩 Bilibili



同样可以高大上的纤维水泥板幕墙 建材u选




断面cad设计 新人首单立减十元 21年7月 淘宝海外



断面图与剖面图的区别 建标博客



房屋建筑制图统一标准 附条文说明 Gb T 17 建标库



一块板道路横断面图 图片欣赏中心 急不急图文 Jpjww Com



D谛国学堂 汽车b柱内板主断面catia正向开发



每分米处注有数字万博体育网页版 万博体育网页版登录 首页 欢迎您




汽车内外饰设计 仪表板安装断面设计 知乎




筋板断面怎么画 肋板的断面图怎么画 肋板断面图国家标准



公示 南昌4条道路即将升级 改造规划图传出



油泥模型 鼠标油泥模型制作过程一卡板断面做大型 哔哩哔哩 Bilibili



什么是断面图 腾讯视频



画出肋板的重合断面图 万图壁纸网



创鑫激光




Ppt 第五章城市道路横断面设计城市道路横断面是指道路中心线法线方向的道路断面 设计内容包括车行道 机动车道和非机动车道 人行道 分隔带 绿化带 设施带等 Powerpoint Presentation Id



车身主断面设计方法培训 光学社
0 件のコメント:
コメントを投稿